- Woonoppervlakte
- Circa 130 m²
- Perceeloppervlakte
- Circa 149 m²
- Bouwjaar
- Gebouwd in 1972
- Aantal kamers
- 5 kamers (4 slaapkamers)
Van Rhijn Makelaars verkoopt:
FRAAIE, RUIME, VERDUURZAAMDE EENGEZINSWONING MET ZONNIGE TUIN EN TWEE NIEUWE DAKKAPELLEN – WELKOM AAN DE GRAVESTEIN 45 TE GOUDA!
Deze verrassend brede en ruime 5-kamer eengezinswoning is in de afgelopen jaren grotendeels vakkundig gemoderniseerd en verduurzaamd. De woning beschikt onder andere over een lichte, brede woonkamer, een lichte nieuwe keuken in de halfopen keukenopstelling, drie ruime slaapkamers op de eerste verdieping, een moderne badkamer en een royale zolder met twee recent geplaatste dakkapellen die zorgen voor een flinke hoeveelheid extra leefruimte en lichtinval.
Let op: de zolderverdieping is al grotendeels aangepakt, maar dient nog naar eigen smaak verder te worden afgewerkt – een mooie kans voor wie zelf de puntjes op de i wil zetten!
Bouwjaar 1972. Woonoppervlakte ca. 130m2. Inhoud 404m3. Externe bergruimte ca. 7.3m2.
Pluspunten van deze woning:
- Brede en ruime woning met veel leefruimte
- Twee nieuwe dakkapellen (voor en achter)
- Nieuwe keuken geplaatst (2024)
- Ruime achtertuin op het zuidwesten met vrijstaande berging en achterom
- Gelegen aan een autoluw voetpad: extra kindvriendelijk
- Speeltuin direct om de hoek
- Nabij winkelcentrum Bloemendaal, scholen, openbaar vervoer en uitvalswegen
- Zolderverdieping met veel potentie
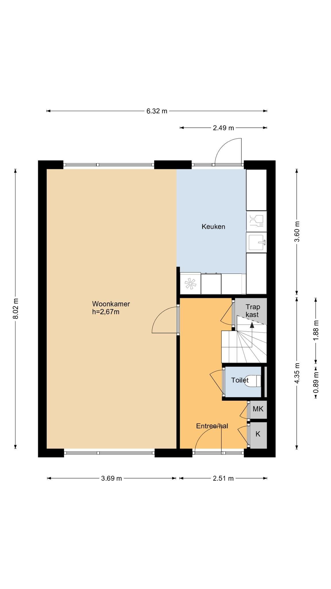
Indeling:
Begane grond:
Via de verzorgde voortuin met overdekte entree kom je binnen in een ruime hal met garderobehoek, meterkast, trapopgang en modern toilet met fonteintje. De sfeervolle royale woonkamer is voorzien van een fraaie vloer, strak gestucte wanden en een prettige breedte, waardoor het geheel ruimtelijk en uitnodigend aanvoelt. De halfopen keuken in L-opstelling bevindt zich aan de achterzijde van de woning en is recent geplaatst. Deze moderne keuken beschikt over diverse inbouwapparatuur en biedt toegang tot de zonnige tuin.
De achtertuin is royaal, gelegen op het zuidwesten en voorzien van een vrijstaande stenen berging met elektra én een praktische achterom.
Eerste verdieping:
Ruime overloop met toegang tot drie comfortabele slaapkamers (waarvan één aan de voorzijde en twee aan de achterzijde) en een moderne badkamer. De badkamer is voorzien van een inloopdouche, wastafelmeubel, designradiator en een tweede toilet. Alle slaapkamers zijn netjes afgewerkt en voorzien van een laminaatvloer.
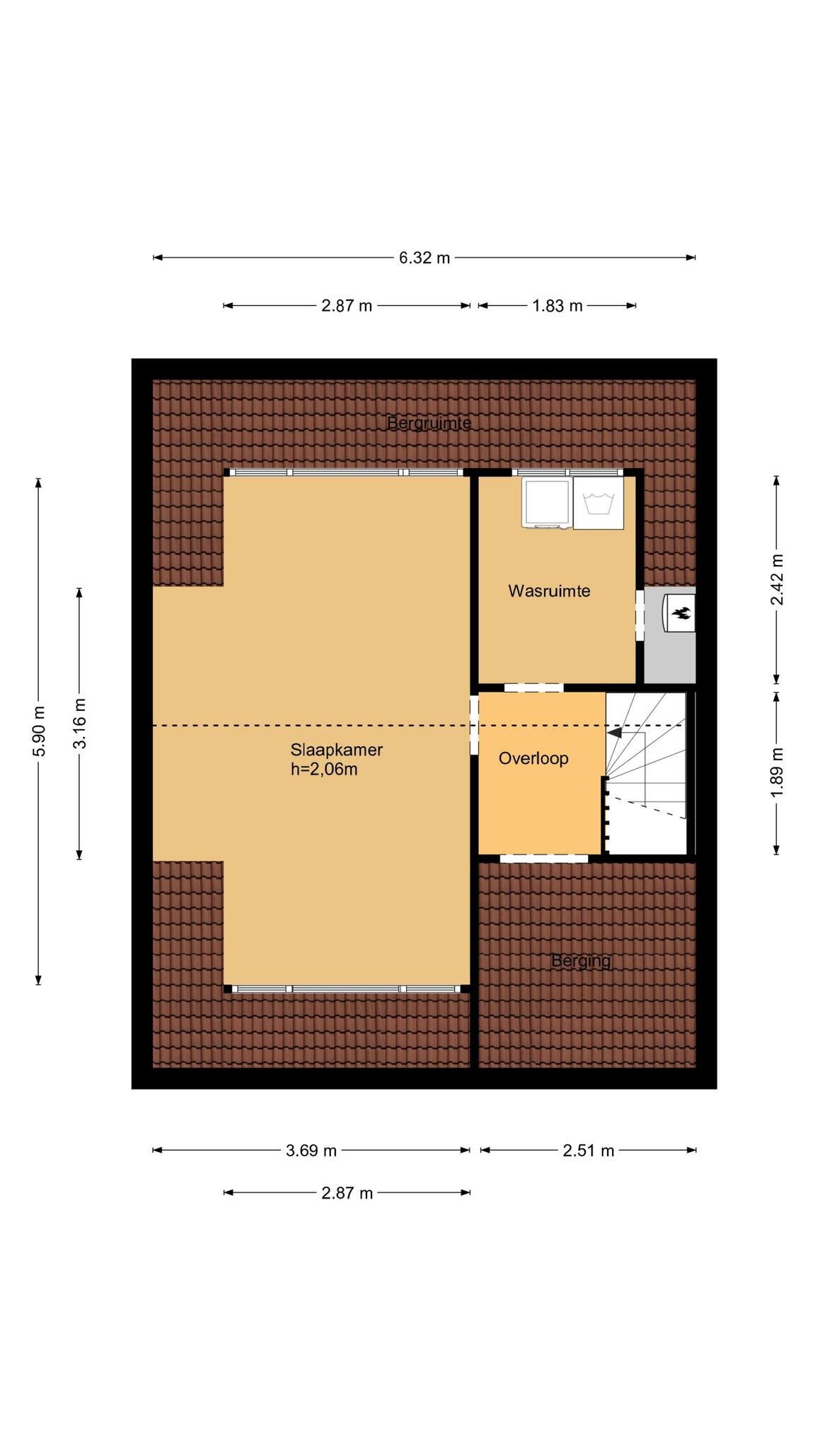
Tweede verdieping:
Via een vaste trap bereik je de royale zolderverdieping. Deze verdieping is recent opgesplitst naar een ruime overloop, een wasruimte en een grote slaapkamer.
In de grote slaapkamer bevinden zich twee recent geplaatste dakkapellen (voor en achter) waardoor er aanzienlijk meer ruimte is ontstaan. De verdere afwerking laat ruimte voor eigen ideeën en invulling.
Tuin met zon, sfeer en privacy
De ruime achtertuin van circa 10.30x6.50m. is een heerlijke plek om te ontspannen en buiten te leven. Dankzij de gunstige ligging op het zuidwesten geniet je hier van de middag- en avondzon – ideaal voor lange zomeravonden. De tuin is fraai ingericht met een zonneterras, siergrind en een prachtige olijfboom als eyecatcher. Langs de zijkant vind je meerdere fruitbomen die zorgen voor een groene, natuurlijke sfeer. Achterin is momenteel een opblaasbare jacuzzi geplaatst – dé plek om even helemaal tot rust te komen. De tuin is volledig omsloten met een stevige schutting voor optimale privacy en beschikt over een praktische stenen berging en een achterom.
Afmetingen begane grond:
Woonkamer ca. 3.69x8.02m.
Keuken ca. 2.49x3.60m.
Hal ca. 2.51x4.35m.
Afmetingen 1e verdieping:
Slaapkamer voorzijde ca. 3.69x3.37m.
Slaapkamer achterzijde ca. 3.70x4.58m.
Slaapkamer achterzijde ca. 2.53x3.60m.
Afmetingen 2e verdieping:
Wasruimte ca. 1.83x2.42m.
Slaapkamer ca. 5.90/3.16x3.69m/2.87m.
Afmetingen tuin:
Achtertuin ca. 10.30x6.50m.
Voortuin ca. 4.00x6.50m.
Locatie:
De woning ligt in de populaire, kindvriendelijke wijk Bloemendaal. Voorzieningen zoals basisscholen, speeltuinen, sportverenigingen en winkelcentrum Bloemendaal bevinden zich op loopafstand. Ook uitvalswegen richting Rotterdam, Utrecht en Den Haag zijn snel bereikbaar.
Kortom:
Een instapklare gezinswoning met nog mogelijkheden tot eigen afwerking, veel ruimte en een heerlijke tuinligging. Ideaal voor gezinnen die op zoek zijn naar comfort, ruimte én een kindvriendelijke leefomgeving.
Disclaimer:
“Dit woonhuis is ingemeten volgens de NEN2580 en is voorzien van een gecertificeerd meetcertificaat. De meetinstructie is bedoeld om een meer eenduidige manier van meten toe te passen voor het geven van een indicatie van de gebruiksoppervlakte. De meetinstructie sluit verschillen in meetuitkomsten niet volledig uit. Alle verstrekte informatie moet beschouwd worden als een uitnodiging tot het doen van een bod of om in onderhandeling te treden. Er kunnen geen rechten worden ontleend aan deze woninginformatie.”
Overdracht
- Vraagprijs
- € 500.000 k.k.
- Status
- Verkocht
- Aanvaarding
- In overleg
Bouw
- Object type
- Eengezinswoning, tussenwoning
- Soort bouw
- Bestaande bouw
- Bouwjaar
- 1972
- Soort dak
- Zadeldak bedekt met pannen
Oppervlakte en inhoud
- Woonoppervlakte
- 130 m²
- Perceeloppervlakte
- 149 m²
- Inhoud
- 404 m³
- Externe bergruimte
- 7 m²
Indeling
- Aantal kamers
- 5 kamers (4 slaapkamers)
- Aantal badkamers
- 1 badkamer
- Badkamervoorzieningen
- Ligbad, toilet, inloopdouche
- Aantal woonlagen
- 3 woonlagen
- Voorzieningen
- Mechanische ventilatie, tv-kabel, balansventilatie
Energie
- Energielabel
- B
- Energielabel registratie
- 01-07-2025
- Isolatie
- Dakisolatie, vloerisolatie, dubbel glas
- Verwarming
- Cv-ketel
- Warm water
- Cv-ketel
- Cv ketel
- Combiketel gas gestookt (eigendom)
Buitenruimte
- Ligging
- In woonwijk
- Tuin
- Achtertuin, voortuin
- Afmetingen achtertuin
- 60 m² (0.1 meter diep en 0.07 meter breed)
- ligging tuin
- Gelegen op het zuidwesten en bereikbaar via achterom
Bergruimte
- Schuur / berging
- Vrijstaand steen
- Voorzieningen
- Voorzien van elektra
Garage
- Soort garage
- Geen garage
Parkeergelegenheid
- Soort parkeergelegenheid
- Openbaar parkeren
Energieverbruik in Gouda
Energielabel deze woning
Energielabel B
Publicatie energielabel: 01-07-2025
Stroomverbruik per jaar
(Gemiddelde tussenwoning in Gouda)
Gasverbruik per jaar
(Gemiddelde tussenwoning in Gouda)
* Cijfers zijn afkomstig van het CBS en bedoeld als indicatie en kunnen verschillen voor deze woning
Indicatie hypotheeklasten
Eigen inleg:
Spaargeld / overwaarde
Rente:
Laagste 10-jaars rente
Laagste 10-jaars rente
2,76% - Centraal Beheer Groen... - NHG
2,98% - Centraal Beheer Groen... - 80%
Laagste 20-jaars rente
3,19% - Centraal Beheer Groen... - NHG
3,31% - Centraal Beheer Groen... - 80%
Laagste 30-jaars rente
3,34% - Centraal Beheer Groen... - NHG
3,47% - Centraal Beheer Groen... - 80%
Hypotheek:
Bruto maandlasten: € 0 p/m
Netto maandlasten: € 0 p/m
Hoe berekenen we dit?
Het rentepercentage is gebaseerd op de laagste 10-jaars vaste rente voor één hypotheekdeel. De vermelde rente (2.98% zonder NHG) is gecontroleerd op 18-09-2025. Deze berekening is gebaseerd op een annuïteitenhypotheek die volledig wordt afgelost, waarbij de maandlasten gedurende de gehele looptijd gelijk blijven. De werkelijke rente en netto maandlasten kunnen variëren, afhankelijk van uw persoonlijke situatie en de hypotheekverstrekker. Raadpleeg een financieel adviseur voor een nauwkeurige berekening en advies. Aan deze berekening kunnen geen rechten worden ontleend; het dient enkel als indicatie.
Documentatie
Kadastrale kaart
Leefomgeving
Brochure
Plattegronden PDF
WOZ waarderapport
BAG uittreksel
Bezoek onze website
Bezichtiging
Bod uitbrengen
Waardebepaling
Zoekopdracht
Alles downloaden
Zonnegrenzen bekijken
Op de kaart
Inwoners in Gouda
Cijfers voor postcodegebied 2804
- Totaal aantal inwoners
- 12195 inwoners
- Mannen
- 47%
- Vrouwen
- 53%
Inwoners in Gouda
Cijfers voor postcodegebied 2804
- tot 15 jaar
- 16%
- 15 tot 25 jaar
- 10%
- 25 tot 35 jaar
- 19%
- 45 tot 65 jaar
- 28%
- 65 en ouder
- 27%
Huishoudens in Gouda
Cijfers voor postcodegebied 2804
- Eenpersoons zonder kinderen
- 35%
- Meerpersoons zonder kinderen
- 32%
- Huishoudens zonder kinderen
- 67%
Huishoudens in Gouda
Cijfers voor postcodegebied 2804
- Huishoudens met één kind
- 8%
- Huishoudens met meerdere kinderen
- 26%
- Huishoudens met kinderen
- 34%
Woningen in Gouda
Cijfers voor postcodegebied 2804
- Woningen voor 1945
- 1%
- Woningen tussen 1945 en 1965
- 1%
- Woningen tussen 1965 en 1975
- 56%
- Woningen tussen 1975 en 1985
- 37%
- Woningen tussen 1985 en 1995
- 3%
Woningen in Gouda
Cijfers voor postcodegebied 2804
- Woningen tussen 1995 en 2005
- 1%
- Woningen tussen 2005 en 2015
- 2%
- Woningen na 2015
- 1%
- Huurwoningen
- 40%
- Koopwoningen
- 60%
Overige in Gouda
Cijfers voor postcodegebied 2804
- Gemiddelde WOZ waarde
- € 229.000,-
- Personen onder de 65 met uitkering
- 8%
Overige in Gouda
Cijfers voor postcodegebied 2804
- Adressen per km²
- 2159
- Stedelijkheid (schaal 1 op 5)
- 80%
Korte feiten over Gouda
Gouda is een stad en gemeente in het oosten van de provincie Zuid-Holland in Nederland met 75.763 inwoners (1 januari 2024, bron: CBS) op een grondgebied van 16,92 km². De stad is gelegen in Midden-Holland en in het stedelijk gebied de Randstad, op ruwweg gelijke afstand van Rotterdam, Utrecht en Den Haag. Gouda heeft een regiofunctie binnen het Groene Hart, waar het qua inwoners de grootste stad en de op een na grootste gemeente is (na Alphen aan den Rijn). Het is naar inwonertal gemeten de 48e gemeente van Nederland en de 12e gemeente van Zuid-Holland.
Van Rhijn Makelaars
Indien u vragen heeft of u wilt een bezichtiging inplannen, dan kunt u gebruik maken van het formulier hiernaast. Er zal daarna op korte termijn contact met u worden opgenomen.
van Limburg Stirumstraat 2
2805 BD, Gouda
0182 – 748 739 info@vanrhijnmakelaars.nl www.vanrhijnmakelaars.nlContact opnemen
Over Van Rhijn Makelaars
Van Rhijn Makelaars, voorheen bekend als Uw Verkoopmakelaars en UwAankoopmakelaars.nl, is uw partner bij het zoeken naar een nieuwe woning of het verkopen van uw huidige woning. Bent u toe aan een grotere woning of wilt u gewoon in een andere omgeving wonen? Dan bent u bij ons aan het juiste adres.
Bij Van Rhijn Makelaars kunt u terecht voor de aankoop, verkoop en verhuur van uw woning in Reeuwijk, Gouda, Bodegraven, Boskoop, Haastrecht, Waddinxveen, Moordrecht en Woerden. Wij bieden alle diensten die u van een makelaar verwacht, maar dan tegen een vast tarief dat vooraf is bepaald. Dit geldt voor zowel de verkoop als de aankoop van uw woning.
Wij zetten moderne tools in, maken duidelijke afspraken en zijn transparant in onze werkwijze. Zo kunt u met een gerust hart uw zoektocht naar een nieuwe woning starten of uw huidige woning verkopen.
Nieuwste reviews
-
Domela Nieuwenhuisstraat 17
Fijne heren om mee samen te werken.Even gauw contact via de app, kan gewoon.Zelfs op vakantie, wordt er gereageerd:)Bedankt namens de famili...
-
v Mecklenburg Schwerinlaan 27
Deskundige makelaar, correct doortastend ze hebben een goede kennis van de marktDe begeleiding was uitstekend, het overleg met de aspirant-k...
-
Voorkade 75
Goede service en dienstverlening. Geen 9 tot 5 mentaliteit. Ook 's avonds en in het weekend snel antwoord gekregen op mijn vragen !